Proyecto Mi Kaleta

El terreno de tus sueños

El Proyecto denominado “MI KALETA” ubicado en la Lotización Peñón del Río (Durán), es un proyecto de venta de lotes que cuenta con:

  • Terrenos desde 120m²
  • Tubería de agua potable
  • Luz eléctrica
  • Cuotas desde $99 dólares
  • Áreas verdes y deportivas
  • Arco de ingreso
  • Amplio acceso
  • Encantador entorno natural


*Sujetos a disponilidad
PRIMERA ETAPA 100% VENDIDA

C.C Buena Vista Plaza, Local #8, PA2 - Edificio 2.
Telefono: 099-780-1479


Ver Proyecto completo

Alcance de Proyecto

Propuesta de Financiamiento

El terreno de tus sueños

  • Terrenos desde: $6,000
  • Entrada: $999
  • Saldo a financiar: $5,000
  • Interés anual: 7%
  • Cuota por 60 meses: $99 dólares
Segunda etapa - Venta de Lotes

Venta de Lotes

SEGUNDA ETAPA

  • Desde $6,000 dólares
  • Desde 120 m²
  • Financiamiento directo
  • 12 minutos del Puente de Unidad Nacional
Alcance de Proyecto

Alcance de Proyecto

El terreno de tus sueños

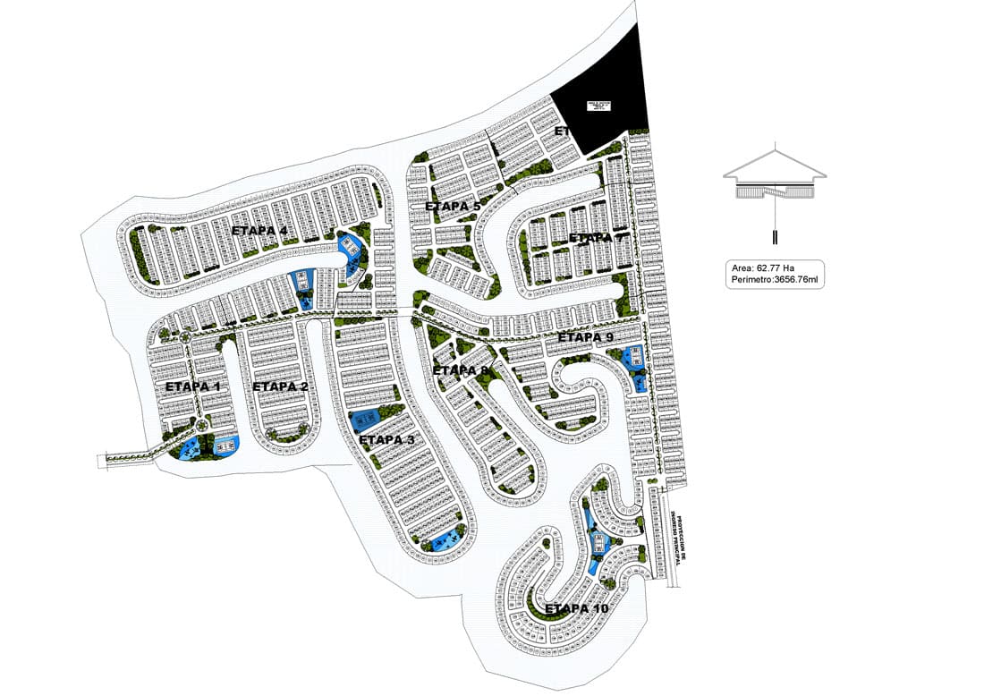
  • Área Total del proyecto: 627.746 m2
  • Área Útil: 370.150 m2 (37 Has)
  • Número de lotes: 2215
  • Promedio de 120 m2 por lote
  • Accessible para la población de la zona
Alcance de Proyecto

Etapa 1

100% VENDIDA

  • Extension 3.5 hectareas
  • 158 predios
  • Promedio de 110 mt2
  • ACM
  • Vía de acceso al Proyecto
  • Arco de entrada
Alcance de Proyecto

Etapa 2

El terreno de tus sueños

  • Desde 4.5 hectareas
  • 200 predios
  • Promedio de 120 m²
  • ACM
  • Áreas recreativas

¿Cómo llegar a Mi Kaleta?
Cantón Durán

Ver video
Venta de Lotes

Proceso de Venta

Paso 1

  • Asignación Lote
  • Pago de entrada del 20% del valor del terreno
  • Visita
Alcance de Proyecto

Proceso de Venta

Paso 2: Promesa de Compra - Venta

  • Firma promesa notarizada
  • Arranca el Financiamiento
Alcance de Proyecto

Proceso de Venta

Paso 3: Escrituras de CV

  • Firma de Escritura posterior al pago total
  • Notarización e inscripción en Registro de la Propiedad


Oficinas de ventas

C.C Buena Vista Plaza, Edificio 2, PA2 - Local #8, Km 0.5 vía Samborondón.


Atención:
Lunes a viernes de 09:00AM a 16:30PM
Sábados de 10:00AM a 14:00PM
Telefono: 099-780-1479

Agende su visita en Oficina


Visita en Obra

Lotización Peñón del Río (Durán)
Servicio de transporte gratuito previa cita


Atención:
Lunes a viernes atención previa Cita
Sábados de 10:00AM a 14:00PM